
PDF Publication Title:
Text from PDF Page: 089
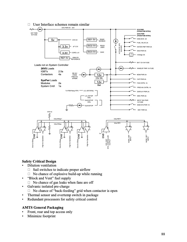
User Interface schemes remain similar EXT PWR 5A FUSE SYS PWR (FROM PDM INTRA) 26VS PWR (FROM PDM INTRA) ESM 26VS 2A FUEL VALVE 2A WATER PMP PWR 2A SW2 PWR 5A H Bridge 5A BAT 12V 5A FUSE WAKEUP PWR 1A FUSE MDM PWR 2A CHP PWR 2A FAN CNTRL 1A PRECHG CNTRL 1A DISPLAY PWR 2A DMC PWR 2A INPUT ISO PWR 1A FUSE ESM SYS PWR 1A SW1 PWR 3A SYS PWR 8V - 30V 5v 3.3v x.xv RS485 MODBUS RS232 USER CAN3 12v Chr 5A 12v Bat SYS 5V uP 3.3V CORE x.xV ANALOG REFERENCE SB 24V FROM PRECHG XFRMR To PDM Relay RTN H +/- Loads not on System Controller 26VS Loads IGBTs 2.5a Contactors 4a SysPwr Loads Modules 2a System Cntrl 1a SYS 5v LCL ESTOP(S) LCL ESTOP RTN GLB ESTOP RTN GLB ESTOP Safety Critical Design Intra EStop+ Intra RST+ Intra RST- • Dilution ventilation Sail switches to indicate proper airflow No chance of explosive build-up while running • “Block and V ent” fuel supply No chance of gas leaks when fans are off • Galvanic isolated pre-charge No chance of “back-feeding” grid when contactor is open • Thermal sensor and overtemp switch in package • Redundant processors for safety critical control AMTS General Packaging • Front, rear and top access only • Minimize footprint IS01 5V ISO2 5V Intra EStop- REF 5V ISO3 5V 5v 88 Enb for EStop ENB High for Operation Enb for EStop ENB High for Operation Enb for EStop ENB High for Operation SYS_RST SYS_CONTROLLER OUTPUT NODE_RST INPUT NODE_RST INPUT ENB ACTIVATE UPS (bat start)PDF Image | Final Technical Report Advanced MicroTurbine System (AMTS) -C200 MicroTurbine -Ultra-Low Emissions MicroTurbine
PDF Search Title:
Final Technical Report Advanced MicroTurbine System (AMTS) -C200 MicroTurbine -Ultra-Low Emissions MicroTurbineOriginal File Name Searched:
975026.pdfDIY PDF Search: Google It | Yahoo | Bing
NFT (Non Fungible Token): Buy our tech, design, development or system NFT and become part of our tech NFT network... More Info
IT XR Project Redstone NFT Available for Sale: NFT for high tech turbine design with one part 3D printed counter-rotating energy turbine. Be part of the future with this NFT. Can be bought and sold but only one design NFT exists. Royalties go to the developer (Infinity) to keep enhancing design and applications... More Info
Infinity Turbine IT XR Project Redstone Design: NFT for sale... NFT for high tech turbine design with one part 3D printed counter-rotating energy turbine. Includes all rights to this turbine design, including license for Fluid Handling Block I and II for the turbine assembly and housing. The NFT includes the blueprints (cad/cam), revenue streams, and all future development of the IT XR Project Redstone... More Info
Infinity Turbine ROT Radial Outflow Turbine 24 Design and Worldwide Rights: NFT for sale... NFT for the ROT 24 energy turbine. Be part of the future with this NFT. This design can be bought and sold but only one design NFT exists. You may manufacture the unit, or get the revenues from its sale from Infinity Turbine. Royalties go to the developer (Infinity) to keep enhancing design and applications... More Info
Infinity Supercritical CO2 10 Liter Extractor Design and Worldwide Rights: The Infinity Supercritical 10L CO2 extractor is for botanical oil extraction, which is rich in terpenes and can produce shelf ready full spectrum oil. With over 5 years of development, this industry leader mature extractor machine has been sold since 2015 and is part of many profitable businesses. The process can also be used for electrowinning, e-waste recycling, and lithium battery recycling, gold mining electronic wastes, precious metals. CO2 can also be used in a reverse fuel cell with nafion to make a gas-to-liquids fuel, such as methanol, ethanol and butanol or ethylene. Supercritical CO2 has also been used for treating nafion to make it more effective catalyst. This NFT is for the purchase of worldwide rights which includes the design. More Info
NFT (Non Fungible Token): Buy our tech, design, development or system NFT and become part of our tech NFT network... More Info
Infinity Turbine Products: Special for this month, any plans are $10,000 for complete Cad/Cam blueprints. License is for one build. Try before you buy a production license. May pay by Bitcoin or other Crypto. Products Page... More Info
| CONTACT TEL: 608-238-6001 Email: greg@infinityturbine.com | RSS | AMP |